Motorky BMW GS - vše o motocyklech BMW řady GS a o cestování na nich
Motorky BMW GS - vše o motocyklech BMW řady GS a o cestování
  • · BMW GS
  • · Fórum
  • · Články
  • · Zprávy
  • · Galerie
  • · Naše fotografie
  • · Odkazy
  • · Ke stažení
  • · Inzerce
  • · Hledat
Reklama
Kalendář akcí
<< Únor 2026 >>
Po Út St Čt Pá So Ne
            1
2 3 4 5 6 7 8
9 10 11 12 13 14 15
16 17 18 19 20 21 22
23 24 25 26 27 28  
Číst diskusi
Motorky BMW GS - vše o motocyklech BMW řady GS a o cestování :: Ostatní :: Obecné technické problémy
 
ot. uložení kyvné vidlice
chstepan
#1 
Přidané 13.02.2017 12:54

Příspěvků: 2111
Registrace: 25.03.12
zdravím,
obracím se na Vás co máte větší zkušenosti.
mám dotaz:
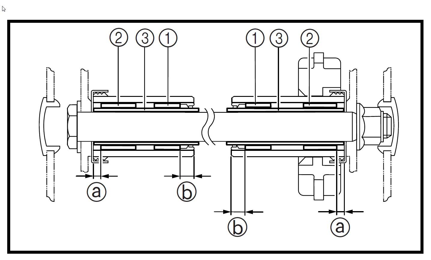
když je uložení kyvky následující viz. obr.
poz. 2 jsou jehlová ložiska
poz.1 jsou futra ..

.. napadlo mě, že bych do kyvky nalisoval vždy 2 a 2 ložiska namísto 2 ložisek a 2 futer ..
proč si myslíte, že je tam vždy kombinace ložisko+futro na každé straně ?
přemýšlím, že bych tam dal pouze 4x ložiska poz.2 místo futer.

napadá Vás , že by to mohlo způsobovat nějaký problém ?
dík
š.
chstepan přiložený následující obrázek:


[97.9Kb]
(ch)stepan
 
Labus01
#2 
ot. uložení kyvné vidlice
Přidané 13.02.2017 13:57

Příspěvků: 857
Registrace: 28.04.12
Myslím, že je to kvůli bordelu a šetření.
Ty malá gufera, co to kryjí nic nevydrží. Když to budeš pravidelně rozebírat, čistit a měnit gufera, tak asi bez problémů, ale když to tam necháš 20t km, tak vysypes rezSmile

www.spotreby.cz/sigs/ico_2_43826.gif
 
Přejít na fórum:
Motorky BMW GS - diskuse :: Ostatní :: Obecné technické problémy :: Více v diskusním fóru
Přihlášení
Jméno

Heslo



Zaregistrovat se
Zaslat zapomenuté heslo
Kdo je on-line
Hosté on-line: 126
Členové on-line: 1
Pivos

Registrováno: 8,772
Nejnovější člen: Jirka72

Poslední návštěvy
Reklama
Vygenerované za: 0.14 sekund
Copyright © 2006 BAWORAK.CZ | Kontakt | Časté dotazy | Pravidla portálu | Hosting poskytuje CGI